A Hidden Granite Farmhouse of Character, Privacy and Unexpected Space
St Brelade
£1,950,000
Reference: 1434539
Features
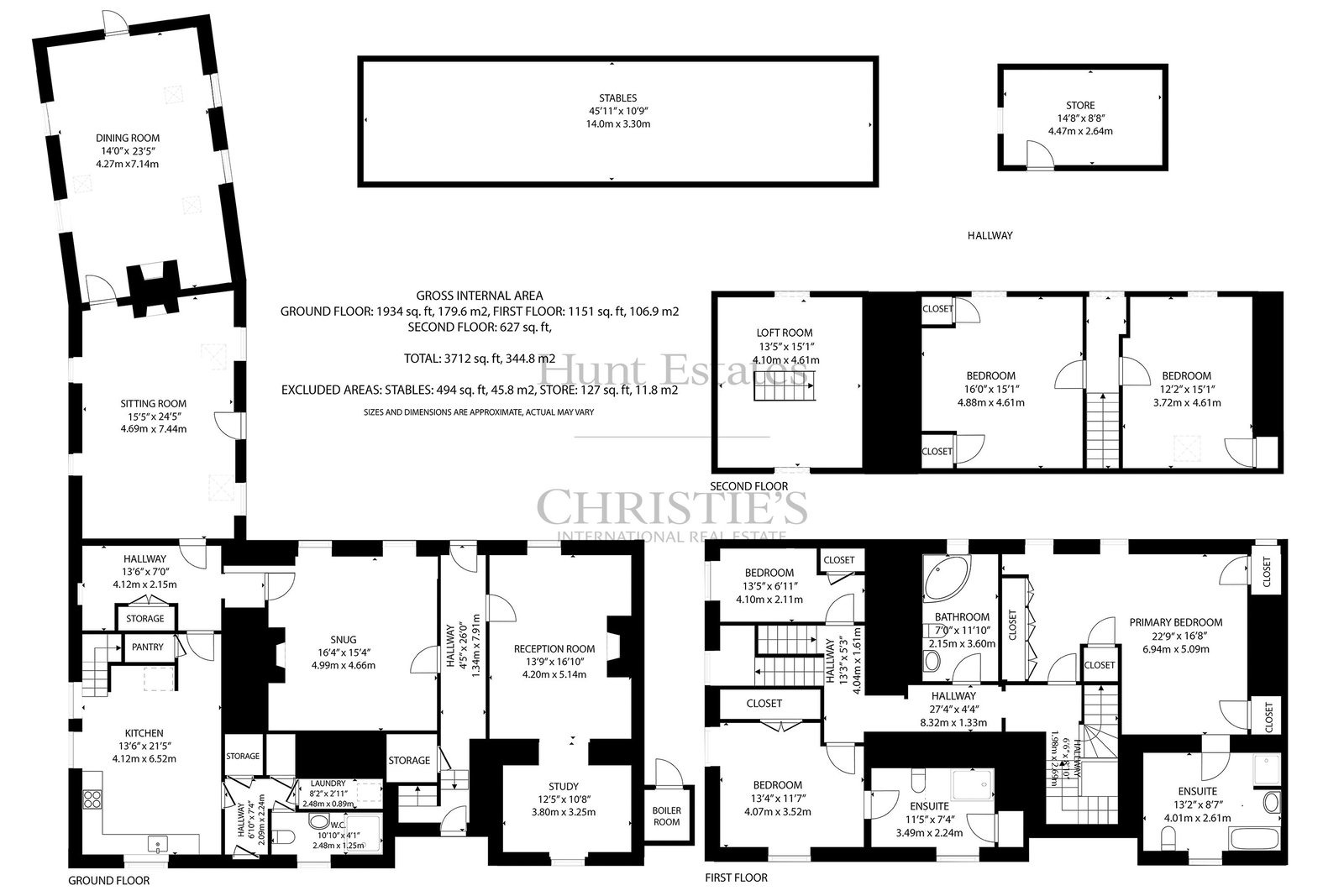
- 5 bedrooms, 4 bathrooms
- Refurbished kitchen and updated bathrooms
- Impressive living room and dining with high vaulted ceilings
- Generous principal suite with ensuite
- Mature, private and surprisingly expansive gardens with courtyard approach
- Snug with fireplace and additional reception rooms
- Garage and ample courtyard parking
- Original granite gatehouse recently renovated
A quintessential Jersey granite farmhouse dating back to 1739, Pont Marquet Farm offers a compelling blend of period character and later extensions, set within attractive and established grounds. Approached via a generous driveway into a traditional courtyard setting, the property immediately conveys charm, privacy, and a sense of heritage.
The house has been thoughtfully refurbished in a number of rooms in recent years, enhancing the kitchen and bathrooms, while retaining the integrity of the original structure. Internally, the accommodation is both versatile and atmospheric, with a series of reception spaces including a striking living room and dining room with high ceilings, a cosy snug with fireplace, and additional reception/study areas that provide flexibility for modern family living.
The kitchen breakfast room forms a natural hub of the home, opening to the surrounding gardens, while practical elements such as a utility room and ground floor shower room add everyday functionality.
Upstairs, the principal bedroom suite is particularly generous, complete with en suite. Additional bedrooms are arranged across the upper floors, including charming rooms within the roof space, alongside a house bathroom, further en suite bedroom and loft room used as play area.
Externally, the property is a standout feature. The grounds are mature and well established, incorporating extensive lawns, planted borders, and a variety of trees, creating a peaceful rural environment. There is also private access to join up to the Railway Walk. Once within the setting, the sense of space and tranquillity is immediate and compelling.
Outbuildings and additional structures further enhance the offering, providing storage and potential for a range of uses including the Gatehouse, which was recently fully renovated, to be used as a potential office/studio. It has its own electricity supply and heating.
INFORMATION
Borehole water with filtration & septic tank system
Oil fired heating
Single glazing
Garage & ample courtyard parking
Parish rates for 2025 were £1,232 pa
Freehold and Entitled/Licensed
Location
The Parish: St Brelade
St Brelade, on the south west coast of Jersey, is one of the most beautiful parishes with gorgeous beaches including St Brelade’s Bay.










































