Detached Country Residence With Separate Granite Cottage
Grouville
£2,600,000
Reference: 1521
Location: ///schools.staples.deprive
Features
- 6 bedrooms, 6 bathrooms
- Detached residence
- Country location
- Country plus far-reaching views
- Enjoy easy access to Gorey Harbour
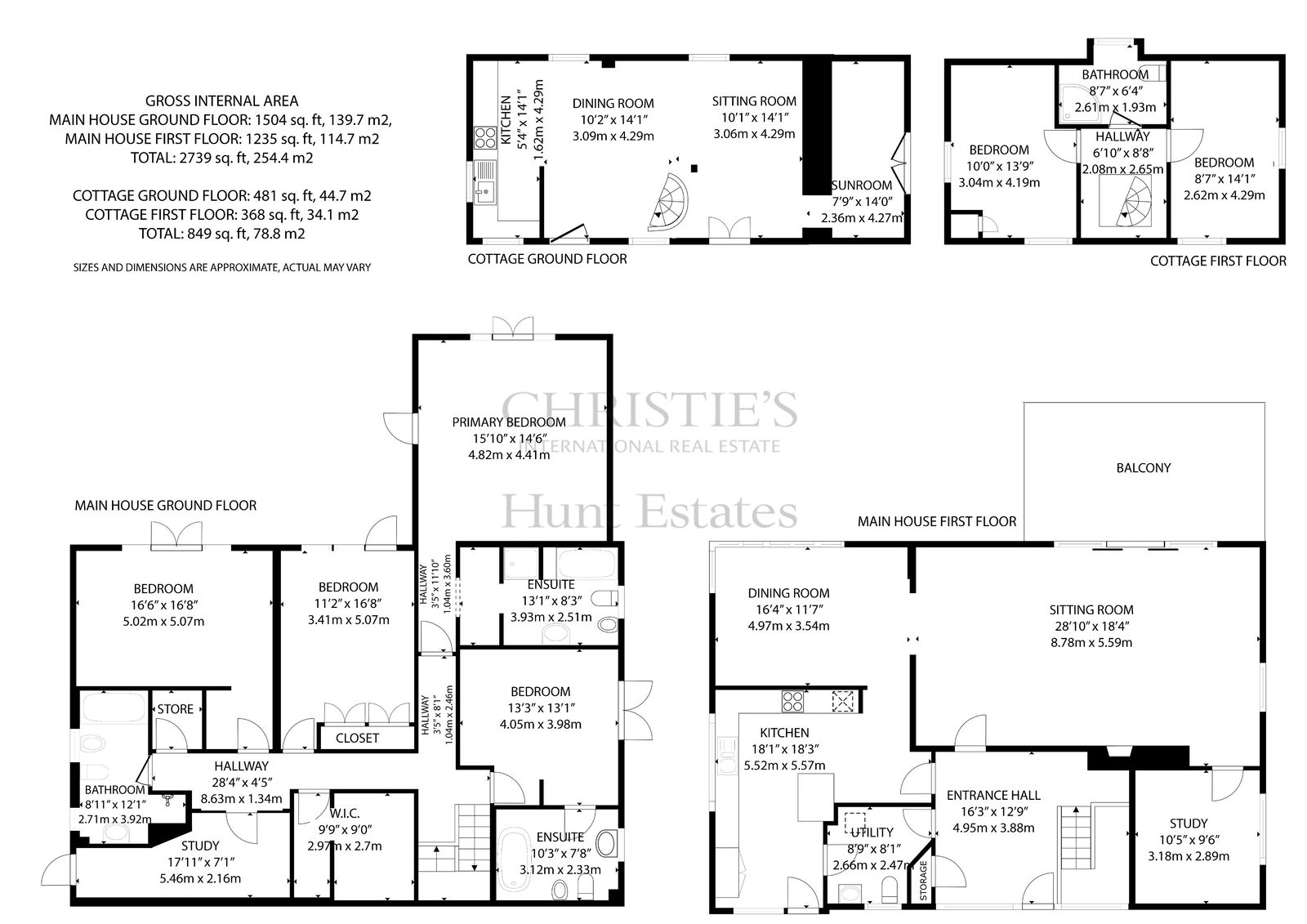
- Main house with 4 bedrooms and 3 bathrooms
- Separate 2-bedroom, 1 bathroom cottage
- A bright and spacious home
Situated in a tranquil country location in a picturesque bucolic area that is typical of Jersey, this attractive property has a lot to offer.
Whilst the main house is a latter-day design, the separate 2 bedroom converted cottage wokes thoughts of temps passe.
The detached residence is set on high ground and enjoys far reaching views across the countryside and towards Mont Orgueil Castle. It is light and bright and has spacious reception rooms.
Within easy reach is Gorey Pier and harbour (approx. 3km) with shops, café's, pubs and restaurants and Queen's Valley reservoir (1.1km) is perfect for country walks with the children or dogs.
Comprising; entrance hall, 28ft sitting room with a real fire and doors to a balcony with lovely country views, this is then open to the dining room, again with lovely views. The kitchen is spacious and well equipped, utility room with door to outside and a separate study completes this floor.
Steps lead down to the bedroom area where there are 4 bedrooms and 3 bathrooms ( 2 being en suite ), there is also a study and separate WC. All bedrooms have doors opening to the outside to enjoy the lovely summer days.
The pretty granite barn was renovated and extended by the current owner. It is modern with a kitchen/sitting area, sitting/dining area and a sunroom. There is a spiral staircase to the first floor where there are 2 bedrooms and a bathroom. There is a designated parking area for 2 cars. It is ideal as a workspace, for family members or as a home with income.
The outside area is well kept with planted borders and a lawned garden steps from the house through the garden with access to the cottage.
This lovely home is ready for a new family to move into immediately and there is further scope to extend, subject to planning permission.
INFORMATION
Mains water and drains
Borehole water for garden
Oil fired central heating to main house
Electric heating in 2-bedroom cottage
Main house - 3,109 sq. ft
Cottage - 849 sq. ft
Double glazed
Double garage - 370 sq. ft and ample driveway parking
Parish rates for 2024 were approx. £1,500
Freehold and Entitled/Licensed
Location
The Parish: Grouville
Grouville is one of two easterly parishes and includes Gorey which is the main, picturesque village.

































