One Bedroom Apartment with Parking in the Heart of Gorey Village
Grouville
£1,500 PCM
Reference: 55173
Location: ///compromises.shabby.appeals
Features
- One double bedroom and a modern bathroom
- Separate fully fitted kitchen
- Excellent storage solutions
- Access to a well-maintained communal garden
- Nicely presented throughout
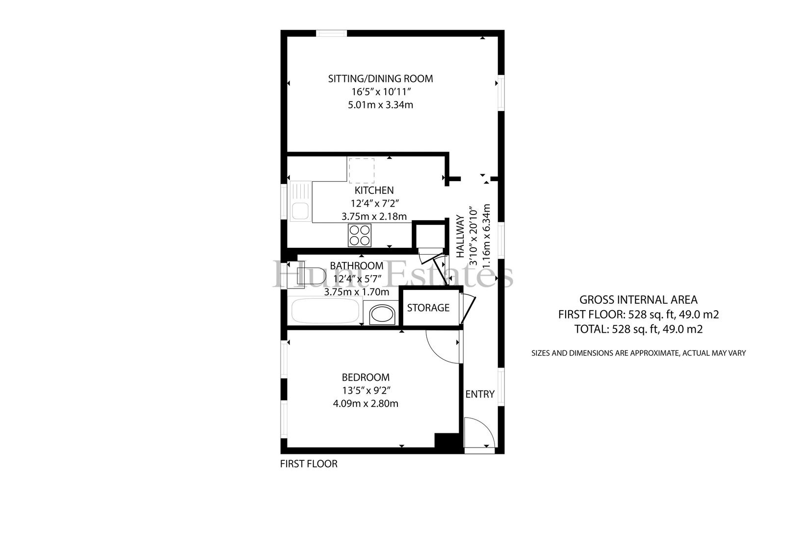
Welcome to La Place de Couteur, a well-maintained first-floor apartment set within the ever-popular Gorey Village, offering a peaceful lifestyle just moments from Long Beach, Gorey Castle, local shops, and the Royal Jersey Golf Club.
Positioned on the top floor with no neighbours above, this bright and spacious home comprises a long entrance hall with access to a large loft space, a comfortable lounge, a separate fitted kitchen, a generous double bedroom, and a modern bathroom.
Externally, the property benefits from two private storage units, a communal bin store, and the use of a well-kept, enclosed communal garden, ideal for relaxing or enjoying the summer sun. One designated parking space is included, along with additional visitor parking.
Perfect for those seeking to escape town living, this property is ideally located on a regular bus route and close to all the amenities that make Gorey such a desirable place to call home.
Please note that this apartment can only be leased to those who would qualify as a first-time buyer.
INFORMATION
Mains water and drains
Economy 7 heating
Parking for one car and visitor
Occupier rates approx. £75 per annum
Please note that this apartment can only be leased to those who would qualify as a first time buyer
Available Immediately to Entitled/Licensed residents
Please note that the equivalent of one months rent is required for the deposit
Location
The Parish: Grouville
Grouville is one of two easterly parishes and includes Gorey which is the main, picturesque village.















