Renovated Detached Granite Home
St Martin
£1,195,000
Reference: 1531
Location: ///motivates.essentials.hope
Features
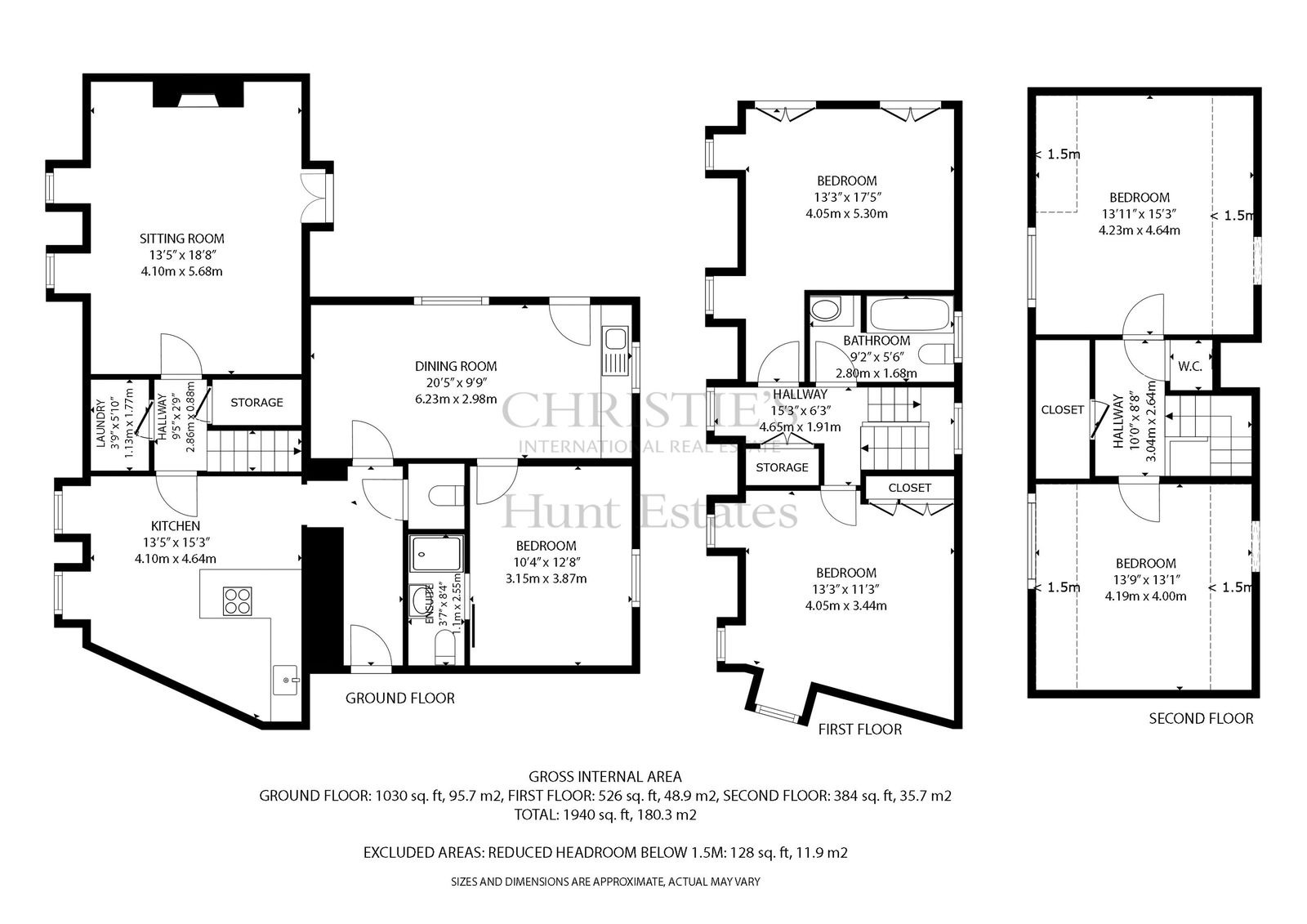
- 5 bedrooms, 2 bathrooms
- Versatile family home with annexe
- Property was taken back to a shell
- Beautiful eat-in kitchen
- Southwest private garden
- Short drive to Gorey Village
A totally renovated detached granite home located not far from Ransoms Garden Centre, it has a new roof, latest category 6 wiring for TV, Sonos sound throughout and multi choice lighting effects. It has been well insulated so that it is in pristine walk in condition.
With up to five bedrooms, it can even offer a two-generation unit, letting unit or be a single home for a family.
The house maintains its original beamed ceilings, has new herringbone Amtico floors, slick, efficient electric wall radiators and a high spec kitchen with Miele appliances and polished Corian worktops and splashback.
The ground floor consists of a modern living area, a beautiful eat in kitchen, plus the annexe that comprises a double bedroom, bathroom and living space.
The living room features a bespoke unit housing and elegant electric fire and flat screen TV and there are patio doors opening into the garden.
A hardwood staircase with sensor stair lighting takes you to the first floor which consists of two double bedrooms and a house bathroom, while on the second floor there are two additional double bedrooms with high ceilings to the apex, as well as wide dormer windows with views over the countryside. There is also a WC at this level.
To the exterior of the property has a generous southwest private garden, part laid to lawn and part paved and a large storage shed attached to the property.
There is off road parking for 4 cars and an electric charging point.
With good amenities not far and just a short drive to Gorey Harbour, this house gives you various living options in a property which is in perfect, move in condition.
INFORMATION
Mains water and drains
New electric heating
Cat 6 infrastructure cabling
Nest control smart heating
Sonos audio surround sound throughout the property
WIFI and Fibre ready
EV Charger
New roof with thermal insulation E20 Plus, 100 mm fully insulated
SKY Satellite
Outside electrics, ideal for hot tub
Off road parking for 5 cars
Parish rates for 2024 were £705.66
Freehold and Entitled/Licensed
Location
The Parish: St Martin
On the east coast, St Martin is a large parish with a lovely coast line. It features the beautiful Rozel Bay and pretty harbour.





















