RURAL DETACHED GRANITE COTTAGE WITH LARGE GARDENS, ORCHARD AND LAND
St John
£1,595,000
Reference: 1251410
Location: ///chopsticks.shells.impacts
Features
- Idyllic detached cottage
- South-west facing
- Tranquil, rural setting
- 3 Double bedrooms, 3 bathrooms
- Eat-in kitchen and two receptions
- Detached double garage with storage above
- 1.6 acres of land approved for use as orchard
- Large level garden
This southwest facing idyllic granite cottage is situated in a secret valley with views across its garden to the wooded hillside beyond. The cottage has been sympathetically refurbished throughout by the current discerning owner to create a very special home.
The property has benefited from damp proofing, rewiring, connection to mains water and a modern tight tank foul water drainage system, whilst retaining all the original features including feature granite walls and exposed beams. As an acknowledgment of the cottage’s heritage importance, it is listed at Grade 3.
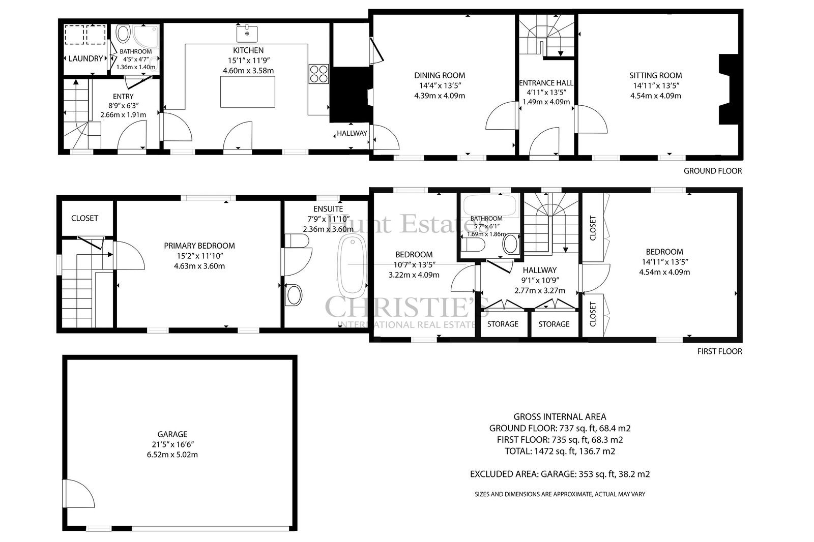
The beautifully presented accommodation comprises: a stunning eat-in farmhouse kitchen with a stable door entrance to allow the summer breeze to drift through and a Rayburn range for winter cosiness. There are two reception rooms each with a wood burning stove plus a ground floor shower room with a laundry section. Two staircases lead up from separate hallways to the first-floor bedrooms, one to an ensuite primary bedroom and the other leading up to two delightful double bedrooms and a house bathroom.
A traditional five bar farm gate opens to the large gravel dressed courtyard offering parking for at least eight cars. Beyond a tiny granite outbuilding that gives a sense of the property’s 18th century origins, there is a separate detached double garage with generous storage above. An area of level lawn to the southwest of the cottage adjoins two acres of agricultural land extending away to the side and following the hillside up behind the cottage.
This area comprises; Fields 66,70, 182 and 183, totalling 4.5 vergees (2 acres) and is approved for use as an orchard.
Of this approximately 1.5 vergees is planted as an orchard with the remainder approved for the planting of trees.
INFORMATION
Mains water
Foul sewage to a tight tank (Emptied monthly at £150pcm)
Oil fired central heating
Underfloor heating downstairs, wet radiators upstairs
Rayburn range cooker
Part double glazed
Parking for 8 cars & double garage
Heritage listing at Grade 3
Damp proofing undertaken in 2003
Electrics rewired in 2003
Includes Fields 66,70,182 & 183 totalling 3.6vergees (1.6 acres)
All land is approved for planting trees.
Parish rates for 2025 were £564.20
Freehold and available to Entitled/ Licensed
Location
The Parish: St John
Situated towards the north of the island it offers some of the best views in Jersey from its cliffs


























