Spacious Two Bedroom, Two Bathroom Beach Facing Apartment
St Clement
£695,000
Reference: 1422097
Location: ///start.wells.pursuit
Features
- Two bedrooms, two bathrooms
- Direct beach front facing
- Unobstructed sea views
- Good sized partly covered balcony
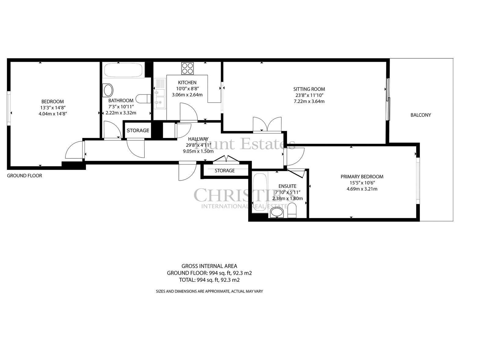
- 994 sq. ft / 92.3 sqm
- Excellent bus route close by
A spacious (994 sq. ft / 92.3 sqm) two-bedroom, two-bathroom apartment that faces directly onto the beach at Greve D’Azette with unobstructed sea views.
The apartment is situated on the first floor of The Dunes development built in 2000, slightly elevated above the pedestrian promenade and with a good-sized balcony that leads off both the principal bedroom and the living room. The partly covered balcony provides a choice of shade or full sun.
The accommodation comprises: entrance hall with two storage cupboards, a separate fitted kitchen with a hatch to the large living room with its balcony doors, an ensuite principal bedroom with a door to the balcony, a further double bedroom and a house bathroom.
There are two designated parking spaces (in tandem) and lift access from the covered parking level. The external redecoration of the development has recently been completed.
The apartment is located right on the beach front and within walking distance of Howard Davis Park and the town centre, whilst being conveniently situated on the excellent coastal bus route.
No onward chain.
INFORMATION
Mains water, mains drains (no gas)
Electric heating
Double glazed
Designated parking for 2 cars in tandem
Service charges £914 per quarter
Parish rates for 2025 were £479.60
Share transfer and available to Entitled/ Licensed
Location
The Parish: St Clement
St Clement is in the south east of Jersey. The parish beaches include Green Island and La Rocque and it enjoys a wonderful marinescape at low tide.

























