Substantial 4 Bedroom Dormer Bungalow In A Delightful Rural Setting
St Lawrence
£1,850,000
Reference: 1483
Location: ///crumb.foliage.brigade
Features
- 4 bedrooms, 3 bathrooms
- Detached dormer bungalow
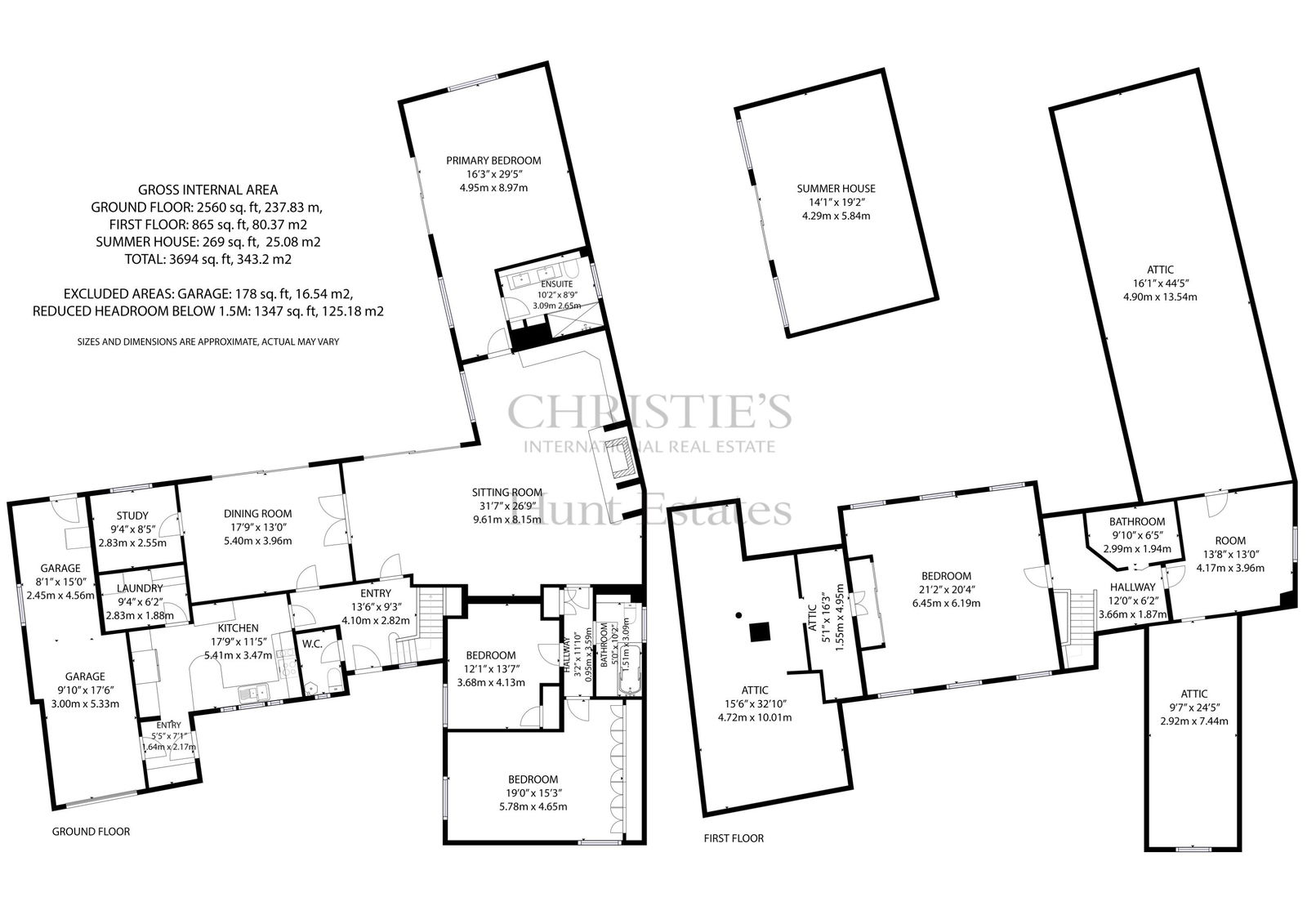
- 3694 sq. ft (2560 sq. ft ground floor)
- Superb, landscaped garden
- Owns section of adjoining meadow
This very attractive, partly granite faced dormer bungalow sits in the heart of St Lawrence with a delightful south facing enclosed garden that borders its own meadowland. The substantial property is set on two floors but with the majority of the accommodation, including three of the four bedrooms, being on the ground floor (2560 sq. ft of the total 3694 sq. ft ).
The expansive accommodation on the ground floor comprises entrance hall, cloakroom, separate fitted kitchen, laundry room, dining room and sitting room (both with garden doors), study, a large ensuite primary bedroom with garden doors, two further double bedrooms and a house bathroom. There is access to the integral double garage.
On the first floor there is a large double bedroom and house bathroom with access to huge attic areas offering as yet untapped potential (subject to any necessary planning approvals).
The recently landscaped garden is enclosed by walls which offer a high level of privacy whilst still retaining the rural aspect with views across the adjoining area of meadow that lies within its ownership.
With a new detached summer house and a combination of block paved areas, terraces and trimmed lawn, there is an area of the garden suited to every time of the day. The fully glazed doors leading from the principal rooms ensure that the delightful outlook over the garden can be enjoyed to the full.
The property is approached from a private lane and there is forecourt parking for 5 cars and a double garage that offers in-line parking for two cars. To the side of the private lane slightly away from the house, is a shared use visitor parking space.
The property is presented in immaculate condition and offers an opportunity to secure a very special home in a rural setting.
INFORMATION
Mains drains, borehole water with filtration system
Oil fired central heating
New oil-fired boiler in 2025
Wood burning stove
Double glazed
Owns part of Field L82
Parking for 5 cars & double garage
1 shared visitor space
Parish rates for 2024 were £758.08
Freehold and available to Entitled/Licensed
Location
The Parish: St Lawrence
St Lawrence is a large parish situated in the centre of Jersey. Some of the attractions of the parish include Coronation Park































