Gated Traditional Style Granite Residence
St Saviour
£4,500,000
Reference: 1691
Location: ///frantic.supposed.tidying
Features
- Granite home
- Gated entrance
- Completely renovated and extended
- 35 ft kitchen/diner
- Several reception spaces
- Easy access to schools
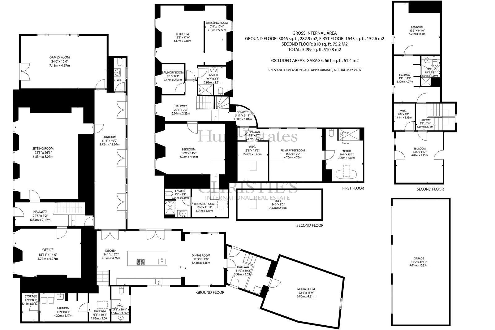
A most attractive granite home set in spacious yet manageable grounds. The property offers privacy, a secure gated entrance and triple garage with ample parking.
This cosy and welcoming home has been completely renovated throughout and extended, in the last 4 years, to provide a wonderful home that would suit a growing family.
It has several reception areas, that are prefect for extended family gatherings or to have time alone, when needed.
Comprising; entrance hall, 26 ft sitting room, 24ft games room with bar, office, 40ft sunroom with doors to the garden, and a media/cinema room.
The impressive 35ft kitchen/diner also has doors directly to the garden for ease of summer entertaining and to keep an eye on smaller children as they play. There is easy access from the kitchen to a good size laundry, storage room and W.C. A second laundry room can also be conveniently found at first floor level.
There are 5 double bedrooms and 4 bathrooms, 4 being en-suite.
The outside of this lovely home is enhanced by external lighting, creating a welcoming atmosphere as the evening draws in. There is a flat lawned area to the rear of the house, which gets afternoon sun. there is a strip of garden and a small, wooded area, where children can explore or perhaps make a kitchen garden.
Positioned perfectly for easy access to main schools and just minutes’ drive to St. Helier.
With approx. 5,500 sq ft this home is ready for a new family to take residence and, with no work required, to be able to simply start enjoying life.
INFORMATION
Mains water and drains
Oil fired central heating
Double glazed apart from attic and front door
Grade 3 listed (original part)
Triple garage and parking for 10+ cars
Parish rates for 2025 were £1,649.56
Freehold and Entitled/Licensed
Location
The Parish: St Saviour
St Saviour is an inland parish. The parish is well populated and has a number of schools.










































