Light and Airy Apartment With Undercover Parking
St Helier
£1,400 PCM
Reference: 53632
Location: ///piston.dreaming.grocers
Features
- One bedroom, one bathroom apartment
- Second floor with lift service
- Separate kitchen with integrated appliances
- Light and airy
- Close to the town centre
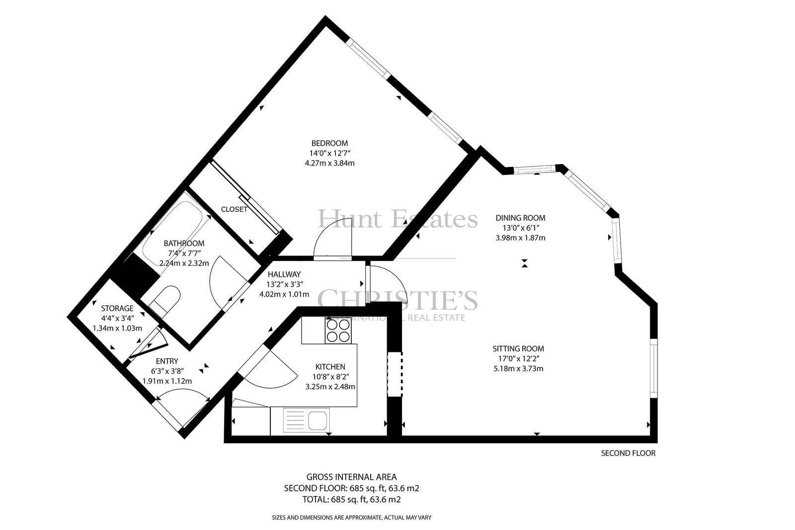
This one bedroom, second floor apartment is situated close to the People’s Park and within five minutes’ walk of the beach at West Park. The apartment has lift access to the second floor and enjoys views over rooftops and towards the promenade and seafront at West Park.
The accommodation comprises: entrance hall with a storage cupboard, separate kitchen with integrated washing machine, dishwasher, fridge/freezer, hob and oven, a large sitting room filled with natural light and a good-sized double bedroom with wardrobes and a house bathroom.
There is lift access to the secure gated basement car park where the designated undercover parking space is conveniently close to the lift hallway.
There is a communal paved garden and clothes drying area.
Available immediately to Entitled/Licensed residents.
INFORMATION
Mains water and drains
Electric night storage heating
Double glazed
Pets by negotiation
Designated under cover parking for 1 car
Occupiers’ rates for 2025 were approx. £170
Available immediately to Entitled/Licensed residents
Please note that the equivalent of 1 months' rent is required for the deposit
Location
The Parish: St Helier
St Helier is the capital of Jersey and is the most urban of the parishes where approximately a third of the population live.
























