Six Bedroom Townhouse – Two Generation Or Home With Income
St Helier
£1,165,000
Reference: 1560
Location: ///camps.admiral.urge
Features
- 6 bedrooms
- Semi-detached
- Flexible accommodation
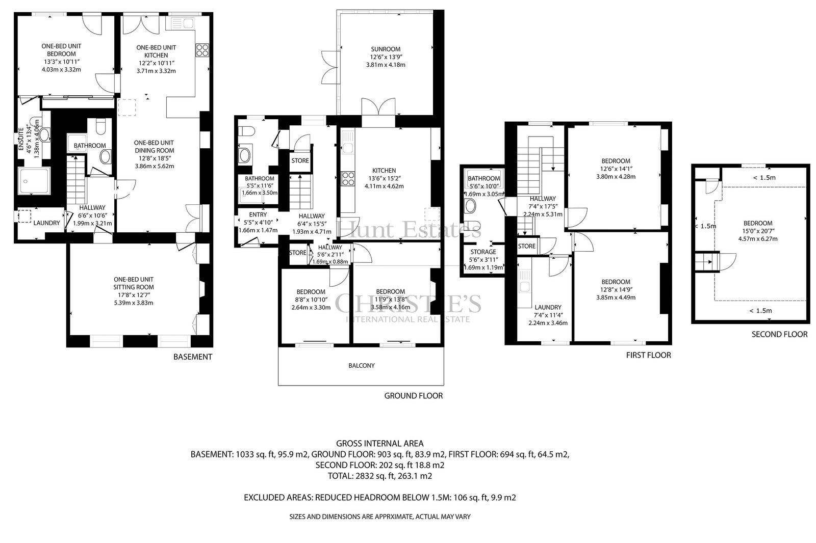
- 1,030 sq ft lower floor apartment
- 1,800 sq ft maisonette on the upper floors
This attractive six bedroom semi-detached townhouse is located on a quiet no through traffic road that lies within ten minutes' walk of the town centre. The property is set on four floors and is currently laid out with a spacious one bedroom apartment (c.1030 sq ft) on the lower ground floor and a four bedroom maisonette (c.1800 sq ft) situated on the ground, first and second floors.
The accommodation comprises: Lower ground floor apartment with a large kitchen /diner, sitting room, house shower room and an ensuite double bedroom. The maisonette comprises on the ground floor: kitchen opening to a sunroom that leads to a terrace, two double bedrooms each with French doors to a balcony and a house bathroom. On the first floor there is a house bathroom, a laundry room, two double bedrooms, each with French doors to a balcony, whilst on the second floor is a large under eaves bedroom.
Externally there is a west facing lawned garden enclosed by railings and to the east elevation is a raised terrace leading off the sunroom, with external steps down to the parking area. There is parking sufficient for five cars.
In recognition of its heritage interest the property is Heritage listed - Grade 3.
Plans have been approved in Nov 2023 for the property to be divided into three apartments. (Ref P/2022/1710).
This elegant town property offers flexible accommodation that would make it very suitable for two generation living or as a home with income.
INFORMATION
Mains water and drains
Heritage Grade 3 listed
Partly oil-fired central heating
Part electric heating
Double glazed throughout
Parking for 5 cars
Plans passed (Nov 2023) to divide the whole property into 3 apartments
(Planning application: P/2022/1710)
Parish rates for 2024 were £648.70
Freehold and Entitled/Licensed
Location
The Parish: St Helier
St Helier is the capital of Jersey and is the most urban of the parishes where approximately a third of the population live.
































