Two Bedrooms Plus Study, South Facing End Of Terrace House
St Mary
£560,000
Reference: 1439656
Location: ///exam.imitators.teeth
Features
- Two double bedrooms & study
- Eat-in kitchen & separate living room
- Conservatory
- South facing garden
- End of terrace
- 10 min walk to St Mary’s Primary School
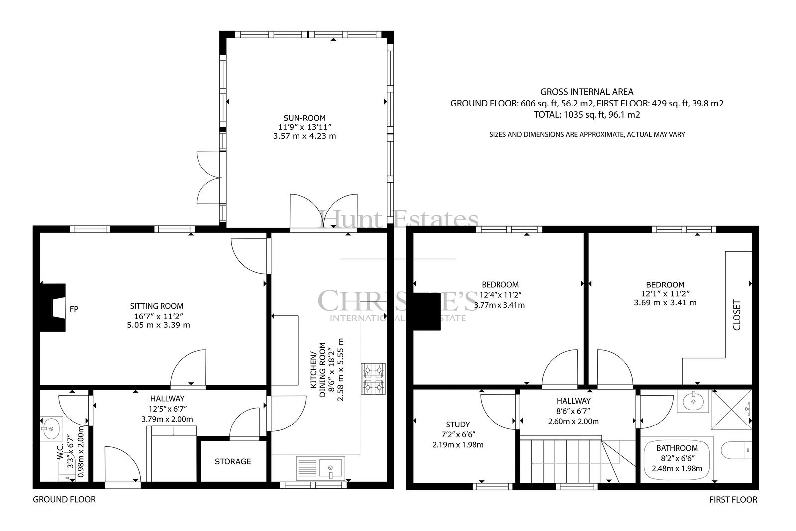
This two bedroom plus study end of terrace house is located within a close of fifteen houses bordering St Mary’s Village. The property has an elevated suntrap south facing garden from which to enjoy views across fields in the distance.
The accommodation comprises: entrance hall, ground floor cloakroom, dual aspect kitchen, south facing conservatory and a living room with a working fireplace.
On the first floor there is a house bathroom with a bath and shower, two double bedrooms and a study. There is a good-sized loft for storage, with folding ladder access. The conservatory doors open to the south facing garden and there is also side gate access.
Within the cul de sac close of houses there are parking areas with non-designated parking spaces. This property lies furthest in to the close with the parking area close to the front of the house generally used by the houses closest to it.
The location is served by the No 7 and No 10 bus routes and lies within the catchment area for
St Mary's Primary School and Les Quennevais. The primary school lies within a 10-minute walk.
The property is now vacant having been let out for many years and would benefit from some gentle modernisation. No onward chain.
INFORMATION
Mains water, mains drains
Electric heating
Double glazed
Non designated parking within the close
Parish rates for 2025 were £500
Freehold and available to Entitled/Licensed
Location
The Parish: St Mary
North west of the island is St Mary, a large, quiet parish with a small population.
























